-
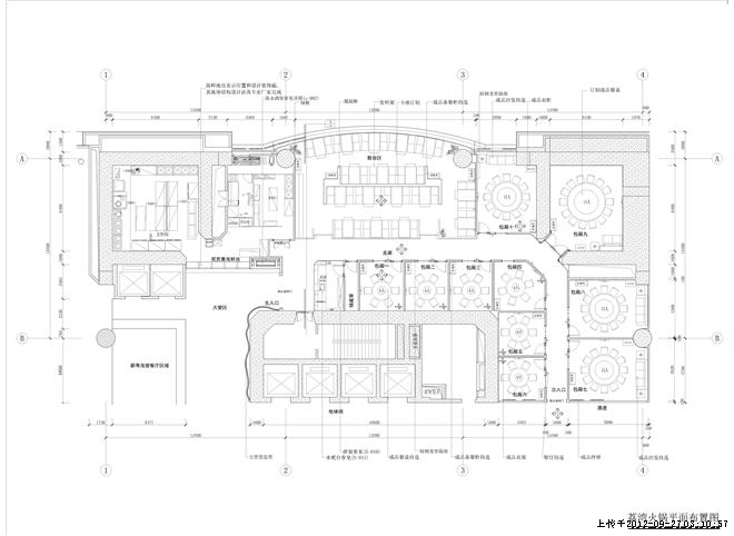
荔湾港式火锅专门店
市场定位:
荔湾港式火锅专门店地处市中心繁华的新华北路西大桥丹璐购物中心4楼,是一家以“健康、营养、鲜美”为主题的港式精品火锅店。
B、与同类竞争性物业相比,作品在环境风格上的设计创新点:
荔湾在传统火锅的基础上精益求精,将广东靓汤和新鲜美味的食材相结合,既包容了各种时尚流行美食元素,更体现了健康养生的饮食结构,这不仅仅是对饮食的追求,更是传播“以食养身”的饮食概念。
作品在空间布局上的设计创新点:
荔湾火锅共划分了进厅、走廊、散台、包厢四个主要区域。进厅部分运用了海洋生物的元素,设有海鲜鱼缸和落水酒架,落水酒架即调节了室内湿度又降低室内温度的作用;同时入口运用了光纤灯,与项目本身紧密结合。走廊部分为了增加上座人数,流线设计单线,所以走廊是本次设计的亮点之一。散台部分首先引入眼帘的是粗狂的裸顶和时尚的造型,粗狂里又透着细致,坐在窗边的卡座上欣赏着美丽的街景,感受着浓浓的火锅文化。包厢部分设计简约,色调统一,半透的门窗将包厢与走廊相隔,在光与影的叠加下,更突显包厢的精致和私密。走出荔湾火锅还为它舒适的色调,优美的音乐久久停留在海洋的进厅,流连忘返。
-
荔湾港式火锅专门店
市场定位:
荔湾港式火锅专门店地处市中心繁华的新华北路西大桥丹璐购物中心4楼,是一家以“健康、营养、鲜美”为主题的港式精品火锅店。
B、与同类竞争性物业相比,作品在环境风格上的设计创新点:
荔湾在传统火锅的基础上精益求精,将广东靓汤和新鲜美味的食材相结合,既包容了各种时尚流行美食元素,更体现了健康养生的饮食结构,这不仅仅是对饮食的追求,更是传播“以食养身”的饮食概念。
作品在空间布局上的设计创新点:
荔湾火锅共划分了进厅、走廊、散台、包厢四个主要区域。进厅部分运用了海洋生物的元素,设有海鲜鱼缸和落水酒架,落水酒架即调节了室内湿度又降低室内温度的作用;同时入口运用了光纤灯,与项目本身紧密结合。走廊部分为了增加上座人数,流线设计单线,所以走廊是本次设计的亮点之一。散台部分首先引入眼帘的是粗狂的裸顶和时尚的造型,粗狂里又透着细致,坐在窗边的卡座上欣赏着美丽的街景,感受着浓浓的火锅文化。包厢部分设计简约,色调统一,半透的门窗将包厢与走廊相隔,在光与影的叠加下,更突显包厢的精致和私密。走出荔湾火锅还为它舒适的色调,优美的音乐久久停留在海洋的进厅,流连忘返。
-
荔湾港式火锅专门店
市场定位:
荔湾港式火锅专门店地处市中心繁华的新华北路西大桥丹璐购物中心4楼,是一家以“健康、营养、鲜美”为主题的港式精品火锅店。
B、与同类竞争性物业相比,作品在环境风格上的设计创新点:
荔湾在传统火锅的基础上精益求精,将广东靓汤和新鲜美味的食材相结合,既包容了各种时尚流行美食元素,更体现了健康养生的饮食结构,这不仅仅是对饮食的追求,更是传播“以食养身”的饮食概念。
作品在空间布局上的设计创新点:
荔湾火锅共划分了进厅、走廊、散台、包厢四个主要区域。进厅部分运用了海洋生物的元素,设有海鲜鱼缸和落水酒架,落水酒架即调节了室内湿度又降低室内温度的作用;同时入口运用了光纤灯,与项目本身紧密结合。走廊部分为了增加上座人数,流线设计单线,所以走廊是本次设计的亮点之一。散台部分首先引入眼帘的是粗狂的裸顶和时尚的造型,粗狂里又透着细致,坐在窗边的卡座上欣赏着美丽的街景,感受着浓浓的火锅文化。包厢部分设计简约,色调统一,半透的门窗将包厢与走廊相隔,在光与影的叠加下,更突显包厢的精致和私密。走出荔湾火锅还为它舒适的色调,优美的音乐久久停留在海洋的进厅,流连忘返。
-
荔湾港式火锅专门店
市场定位:
荔湾港式火锅专门店地处市中心繁华的新华北路西大桥丹璐购物中心4楼,是一家以“健康、营养、鲜美”为主题的港式精品火锅店。
B、与同类竞争性物业相比,作品在环境风格上的设计创新点:
荔湾在传统火锅的基础上精益求精,将广东靓汤和新鲜美味的食材相结合,既包容了各种时尚流行美食元素,更体现了健康养生的饮食结构,这不仅仅是对饮食的追求,更是传播“以食养身”的饮食概念。
作品在空间布局上的设计创新点:
荔湾火锅共划分了进厅、走廊、散台、包厢四个主要区域。进厅部分运用了海洋生物的元素,设有海鲜鱼缸和落水酒架,落水酒架即调节了室内湿度又降低室内温度的作用;同时入口运用了光纤灯,与项目本身紧密结合。走廊部分为了增加上座人数,流线设计单线,所以走廊是本次设计的亮点之一。散台部分首先引入眼帘的是粗狂的裸顶和时尚的造型,粗狂里又透着细致,坐在窗边的卡座上欣赏着美丽的街景,感受着浓浓的火锅文化。包厢部分设计简约,色调统一,半透的门窗将包厢与走廊相隔,在光与影的叠加下,更突显包厢的精致和私密。走出荔湾火锅还为它舒适的色调,优美的音乐久久停留在海洋的进厅,流连忘返。
-
荔湾港式火锅专门店
市场定位:
荔湾港式火锅专门店地处市中心繁华的新华北路西大桥丹璐购物中心4楼,是一家以“健康、营养、鲜美”为主题的港式精品火锅店。
B、与同类竞争性物业相比,作品在环境风格上的设计创新点:
荔湾在传统火锅的基础上精益求精,将广东靓汤和新鲜美味的食材相结合,既包容了各种时尚流行美食元素,更体现了健康养生的饮食结构,这不仅仅是对饮食的追求,更是传播“以食养身”的饮食概念。
作品在空间布局上的设计创新点:
荔湾火锅共划分了进厅、走廊、散台、包厢四个主要区域。进厅部分运用了海洋生物的元素,设有海鲜鱼缸和落水酒架,落水酒架即调节了室内湿度又降低室内温度的作用;同时入口运用了光纤灯,与项目本身紧密结合。走廊部分为了增加上座人数,流线设计单线,所以走廊是本次设计的亮点之一。散台部分首先引入眼帘的是粗狂的裸顶和时尚的造型,粗狂里又透着细致,坐在窗边的卡座上欣赏着美丽的街景,感受着浓浓的火锅文化。包厢部分设计简约,色调统一,半透的门窗将包厢与走廊相隔,在光与影的叠加下,更突显包厢的精致和私密。走出荔湾火锅还为它舒适的色调,优美的音乐久久停留在海洋的进厅,流连忘返。
-
荔湾港式火锅专门店
市场定位:
荔湾港式火锅专门店地处市中心繁华的新华北路西大桥丹璐购物中心4楼,是一家以“健康、营养、鲜美”为主题的港式精品火锅店。
B、与同类竞争性物业相比,作品在环境风格上的设计创新点:
荔湾在传统火锅的基础上精益求精,将广东靓汤和新鲜美味的食材相结合,既包容了各种时尚流行美食元素,更体现了健康养生的饮食结构,这不仅仅是对饮食的追求,更是传播“以食养身”的饮食概念。
作品在空间布局上的设计创新点:
荔湾火锅共划分了进厅、走廊、散台、包厢四个主要区域。进厅部分运用了海洋生物的元素,设有海鲜鱼缸和落水酒架,落水酒架即调节了室内湿度又降低室内温度的作用;同时入口运用了光纤灯,与项目本身紧密结合。走廊部分为了增加上座人数,流线设计单线,所以走廊是本次设计的亮点之一。散台部分首先引入眼帘的是粗狂的裸顶和时尚的造型,粗狂里又透着细致,坐在窗边的卡座上欣赏着美丽的街景,感受着浓浓的火锅文化。包厢部分设计简约,色调统一,半透的门窗将包厢与走廊相隔,在光与影的叠加下,更突显包厢的精致和私密。走出荔湾火锅还为它舒适的色调,优美的音乐久久停留在海洋的进厅,流连忘返。
-
荔湾港式火锅专门店
市场定位:
荔湾港式火锅专门店地处市中心繁华的新华北路西大桥丹璐购物中心4楼,是一家以“健康、营养、鲜美”为主题的港式精品火锅店。
B、与同类竞争性物业相比,作品在环境风格上的设计创新点:
荔湾在传统火锅的基础上精益求精,将广东靓汤和新鲜美味的食材相结合,既包容了各种时尚流行美食元素,更体现了健康养生的饮食结构,这不仅仅是对饮食的追求,更是传播“以食养身”的饮食概念。
作品在空间布局上的设计创新点:
荔湾火锅共划分了进厅、走廊、散台、包厢四个主要区域。进厅部分运用了海洋生物的元素,设有海鲜鱼缸和落水酒架,落水酒架即调节了室内湿度又降低室内温度的作用;同时入口运用了光纤灯,与项目本身紧密结合。走廊部分为了增加上座人数,流线设计单线,所以走廊是本次设计的亮点之一。散台部分首先引入眼帘的是粗狂的裸顶和时尚的造型,粗狂里又透着细致,坐在窗边的卡座上欣赏着美丽的街景,感受着浓浓的火锅文化。包厢部分设计简约,色调统一,半透的门窗将包厢与走廊相隔,在光与影的叠加下,更突显包厢的精致和私密。走出荔湾火锅还为它舒适的色调,优美的音乐久久停留在海洋的进厅,流连忘返。
-
荔湾港式火锅专门店
市场定位:
荔湾港式火锅专门店地处市中心繁华的新华北路西大桥丹璐购物中心4楼,是一家以“健康、营养、鲜美”为主题的港式精品火锅店。
B、与同类竞争性物业相比,作品在环境风格上的设计创新点:
荔湾在传统火锅的基础上精益求精,将广东靓汤和新鲜美味的食材相结合,既包容了各种时尚流行美食元素,更体现了健康养生的饮食结构,这不仅仅是对饮食的追求,更是传播“以食养身”的饮食概念。
作品在空间布局上的设计创新点:
荔湾火锅共划分了进厅、走廊、散台、包厢四个主要区域。进厅部分运用了海洋生物的元素,设有海鲜鱼缸和落水酒架,落水酒架即调节了室内湿度又降低室内温度的作用;同时入口运用了光纤灯,与项目本身紧密结合。走廊部分为了增加上座人数,流线设计单线,所以走廊是本次设计的亮点之一。散台部分首先引入眼帘的是粗狂的裸顶和时尚的造型,粗狂里又透着细致,坐在窗边的卡座上欣赏着美丽的街景,感受着浓浓的火锅文化。包厢部分设计简约,色调统一,半透的门窗将包厢与走廊相隔,在光与影的叠加下,更突显包厢的精致和私密。走出荔湾火锅还为它舒适的色调,优美的音乐久久停留在海洋的进厅,流连忘返。
-
荔湾港式火锅专门店
市场定位:
荔湾港式火锅专门店地处市中心繁华的新华北路西大桥丹璐购物中心4楼,是一家以“健康、营养、鲜美”为主题的港式精品火锅店。
B、与同类竞争性物业相比,作品在环境风格上的设计创新点:
荔湾在传统火锅的基础上精益求精,将广东靓汤和新鲜美味的食材相结合,既包容了各种时尚流行美食元素,更体现了健康养生的饮食结构,这不仅仅是对饮食的追求,更是传播“以食养身”的饮食概念。
作品在空间布局上的设计创新点:
荔湾火锅共划分了进厅、走廊、散台、包厢四个主要区域。进厅部分运用了海洋生物的元素,设有海鲜鱼缸和落水酒架,落水酒架即调节了室内湿度又降低室内温度的作用;同时入口运用了光纤灯,与项目本身紧密结合。走廊部分为了增加上座人数,流线设计单线,所以走廊是本次设计的亮点之一。散台部分首先引入眼帘的是粗狂的裸顶和时尚的造型,粗狂里又透着细致,坐在窗边的卡座上欣赏着美丽的街景,感受着浓浓的火锅文化。包厢部分设计简约,色调统一,半透的门窗将包厢与走廊相隔,在光与影的叠加下,更突显包厢的精致和私密。走出荔湾火锅还为它舒适的色调,优美的音乐久久停留在海洋的进厅,流连忘返。
-
荔湾港式火锅专门店
市场定位:
荔湾港式火锅专门店地处市中心繁华的新华北路西大桥丹璐购物中心4楼,是一家以“健康、营养、鲜美”为主题的港式精品火锅店。
B、与同类竞争性物业相比,作品在环境风格上的设计创新点:
荔湾在传统火锅的基础上精益求精,将广东靓汤和新鲜美味的食材相结合,既包容了各种时尚流行美食元素,更体现了健康养生的饮食结构,这不仅仅是对饮食的追求,更是传播“以食养身”的饮食概念。
作品在空间布局上的设计创新点:
荔湾火锅共划分了进厅、走廊、散台、包厢四个主要区域。进厅部分运用了海洋生物的元素,设有海鲜鱼缸和落水酒架,落水酒架即调节了室内湿度又降低室内温度的作用;同时入口运用了光纤灯,与项目本身紧密结合。走廊部分为了增加上座人数,流线设计单线,所以走廊是本次设计的亮点之一。散台部分首先引入眼帘的是粗狂的裸顶和时尚的造型,粗狂里又透着细致,坐在窗边的卡座上欣赏着美丽的街景,感受着浓浓的火锅文化。包厢部分设计简约,色调统一,半透的门窗将包厢与走廊相隔,在光与影的叠加下,更突显包厢的精致和私密。走出荔湾火锅还为它舒适的色调,优美的音乐久久停留在海洋的进厅,流连忘返。
-
荔湾港式火锅专门店
市场定位:
荔湾港式火锅专门店地处市中心繁华的新华北路西大桥丹璐购物中心4楼,是一家以“健康、营养、鲜美”为主题的港式精品火锅店。
B、与同类竞争性物业相比,作品在环境风格上的设计创新点:
荔湾在传统火锅的基础上精益求精,将广东靓汤和新鲜美味的食材相结合,既包容了各种时尚流行美食元素,更体现了健康养生的饮食结构,这不仅仅是对饮食的追求,更是传播“以食养身”的饮食概念。
作品在空间布局上的设计创新点:
荔湾火锅共划分了进厅、走廊、散台、包厢四个主要区域。进厅部分运用了海洋生物的元素,设有海鲜鱼缸和落水酒架,落水酒架即调节了室内湿度又降低室内温度的作用;同时入口运用了光纤灯,与项目本身紧密结合。走廊部分为了增加上座人数,流线设计单线,所以走廊是本次设计的亮点之一。散台部分首先引入眼帘的是粗狂的裸顶和时尚的造型,粗狂里又透着细致,坐在窗边的卡座上欣赏着美丽的街景,感受着浓浓的火锅文化。包厢部分设计简约,色调统一,半透的门窗将包厢与走廊相隔,在光与影的叠加下,更突显包厢的精致和私密。走出荔湾火锅还为它舒适的色调,优美的音乐久久停留在海洋的进厅,流连忘返。
-
荔湾港式火锅专门店
市场定位:
荔湾港式火锅专门店地处市中心繁华的新华北路西大桥丹璐购物中心4楼,是一家以“健康、营养、鲜美”为主题的港式精品火锅店。
B、与同类竞争性物业相比,作品在环境风格上的设计创新点:
荔湾在传统火锅的基础上精益求精,将广东靓汤和新鲜美味的食材相结合,既包容了各种时尚流行美食元素,更体现了健康养生的饮食结构,这不仅仅是对饮食的追求,更是传播“以食养身”的饮食概念。
作品在空间布局上的设计创新点:
荔湾火锅共划分了进厅、走廊、散台、包厢四个主要区域。进厅部分运用了海洋生物的元素,设有海鲜鱼缸和落水酒架,落水酒架即调节了室内湿度又降低室内温度的作用;同时入口运用了光纤灯,与项目本身紧密结合。走廊部分为了增加上座人数,流线设计单线,所以走廊是本次设计的亮点之一。散台部分首先引入眼帘的是粗狂的裸顶和时尚的造型,粗狂里又透着细致,坐在窗边的卡座上欣赏着美丽的街景,感受着浓浓的火锅文化。包厢部分设计简约,色调统一,半透的门窗将包厢与走廊相隔,在光与影的叠加下,更突显包厢的精致和私密。走出荔湾火锅还为它舒适的色调,优美的音乐久久停留在海洋的进厅,流连忘返。
-
荔湾港式火锅专门店
市场定位:
荔湾港式火锅专门店地处市中心繁华的新华北路西大桥丹璐购物中心4楼,是一家以“健康、营养、鲜美”为主题的港式精品火锅店。
B、与同类竞争性物业相比,作品在环境风格上的设计创新点:
荔湾在传统火锅的基础上精益求精,将广东靓汤和新鲜美味的食材相结合,既包容了各种时尚流行美食元素,更体现了健康养生的饮食结构,这不仅仅是对饮食的追求,更是传播“以食养身”的饮食概念。
作品在空间布局上的设计创新点:
荔湾火锅共划分了进厅、走廊、散台、包厢四个主要区域。进厅部分运用了海洋生物的元素,设有海鲜鱼缸和落水酒架,落水酒架即调节了室内湿度又降低室内温度的作用;同时入口运用了光纤灯,与项目本身紧密结合。走廊部分为了增加上座人数,流线设计单线,所以走廊是本次设计的亮点之一。散台部分首先引入眼帘的是粗狂的裸顶和时尚的造型,粗狂里又透着细致,坐在窗边的卡座上欣赏着美丽的街景,感受着浓浓的火锅文化。包厢部分设计简约,色调统一,半透的门窗将包厢与走廊相隔,在光与影的叠加下,更突显包厢的精致和私密。走出荔湾火锅还为它舒适的色调,优美的音乐久久停留在海洋的进厅,流连忘返。
-
荔湾港式火锅专门店
市场定位:
荔湾港式火锅专门店地处市中心繁华的新华北路西大桥丹璐购物中心4楼,是一家以“健康、营养、鲜美”为主题的港式精品火锅店。
B、与同类竞争性物业相比,作品在环境风格上的设计创新点:
荔湾在传统火锅的基础上精益求精,将广东靓汤和新鲜美味的食材相结合,既包容了各种时尚流行美食元素,更体现了健康养生的饮食结构,这不仅仅是对饮食的追求,更是传播“以食养身”的饮食概念。
作品在空间布局上的设计创新点:
荔湾火锅共划分了进厅、走廊、散台、包厢四个主要区域。进厅部分运用了海洋生物的元素,设有海鲜鱼缸和落水酒架,落水酒架即调节了室内湿度又降低室内温度的作用;同时入口运用了光纤灯,与项目本身紧密结合。走廊部分为了增加上座人数,流线设计单线,所以走廊是本次设计的亮点之一。散台部分首先引入眼帘的是粗狂的裸顶和时尚的造型,粗狂里又透着细致,坐在窗边的卡座上欣赏着美丽的街景,感受着浓浓的火锅文化。包厢部分设计简约,色调统一,半透的门窗将包厢与走廊相隔,在光与影的叠加下,更突显包厢的精致和私密。走出荔湾火锅还为它舒适的色调,优美的音乐久久停留在海洋的进厅,流连忘返。