-
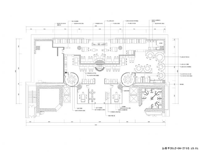
新粤海棠
走进这家餐厅,首先感受到的是它浓浓的设计“范儿”和食客如云的闹猛。在这里,古典与现代被全新演绎,尽管空间中糅合了多种元素,但给人的感觉是清新而悦目,精致而优雅。餐厅整体散发着现代、时尚气息,潺潺的流水,写意流畅的线条,极具创意的装修风格;各种新材料的使用,以及强烈的质感、肌理的对比,体现了现代生活快节奏、简约和实用,但又富有朝气的特点。在悠闲的午后,携三五好友,享受这专属自己的时光,远离现代都市的喧嚣和嘈杂,独享一份难得的恬适与静谧。在功能的划分上,设计师充分利用每一寸空间,通过巧妙的设计,使整个空间零而不散。餐厅内设进厅、中心水景区、就餐区、酒水服务区等,各功能分区既相互独立又相互关联,成为一个有机的整体,提高了工作效率的同时又便于各部门之间的协作。俗话说,民以食为天。当今,吃已不仅仅只是为了充饥,人们赋予了饮食更多的内涵和意义。品味美食,品味的不仅仅只是美食,更是一种时尚的饮食文化,一种健康的生活理念,一种对人生的态度。
感受经典,品味时尚!伴着悠扬的乐曲,再加上一杯纯正的新粤海棠香港奶茶,定会令您流连其中,久久不愿离去……
-
新粤海棠
走进这家餐厅,首先感受到的是它浓浓的设计“范儿”和食客如云的闹猛。在这里,古典与现代被全新演绎,尽管空间中糅合了多种元素,但给人的感觉是清新而悦目,精致而优雅。餐厅整体散发着现代、时尚气息,潺潺的流水,写意流畅的线条,极具创意的装修风格;各种新材料的使用,以及强烈的质感、肌理的对比,体现了现代生活快节奏、简约和实用,但又富有朝气的特点。在悠闲的午后,携三五好友,享受这专属自己的时光,远离现代都市的喧嚣和嘈杂,独享一份难得的恬适与静谧。在功能的划分上,设计师充分利用每一寸空间,通过巧妙的设计,使整个空间零而不散。餐厅内设进厅、中心水景区、就餐区、酒水服务区等,各功能分区既相互独立又相互关联,成为一个有机的整体,提高了工作效率的同时又便于各部门之间的协作。俗话说,民以食为天。当今,吃已不仅仅只是为了充饥,人们赋予了饮食更多的内涵和意义。品味美食,品味的不仅仅只是美食,更是一种时尚的饮食文化,一种健康的生活理念,一种对人生的态度。
感受经典,品味时尚!伴着悠扬的乐曲,再加上一杯纯正的新粤海棠香港奶茶,定会令您流连其中,久久不愿离去……
-
新粤海棠
走进这家餐厅,首先感受到的是它浓浓的设计“范儿”和食客如云的闹猛。在这里,古典与现代被全新演绎,尽管空间中糅合了多种元素,但给人的感觉是清新而悦目,精致而优雅。餐厅整体散发着现代、时尚气息,潺潺的流水,写意流畅的线条,极具创意的装修风格;各种新材料的使用,以及强烈的质感、肌理的对比,体现了现代生活快节奏、简约和实用,但又富有朝气的特点。在悠闲的午后,携三五好友,享受这专属自己的时光,远离现代都市的喧嚣和嘈杂,独享一份难得的恬适与静谧。在功能的划分上,设计师充分利用每一寸空间,通过巧妙的设计,使整个空间零而不散。餐厅内设进厅、中心水景区、就餐区、酒水服务区等,各功能分区既相互独立又相互关联,成为一个有机的整体,提高了工作效率的同时又便于各部门之间的协作。俗话说,民以食为天。当今,吃已不仅仅只是为了充饥,人们赋予了饮食更多的内涵和意义。品味美食,品味的不仅仅只是美食,更是一种时尚的饮食文化,一种健康的生活理念,一种对人生的态度。
感受经典,品味时尚!伴着悠扬的乐曲,再加上一杯纯正的新粤海棠香港奶茶,定会令您流连其中,久久不愿离去……
-
新粤海棠
走进这家餐厅,首先感受到的是它浓浓的设计“范儿”和食客如云的闹猛。在这里,古典与现代被全新演绎,尽管空间中糅合了多种元素,但给人的感觉是清新而悦目,精致而优雅。餐厅整体散发着现代、时尚气息,潺潺的流水,写意流畅的线条,极具创意的装修风格;各种新材料的使用,以及强烈的质感、肌理的对比,体现了现代生活快节奏、简约和实用,但又富有朝气的特点。在悠闲的午后,携三五好友,享受这专属自己的时光,远离现代都市的喧嚣和嘈杂,独享一份难得的恬适与静谧。在功能的划分上,设计师充分利用每一寸空间,通过巧妙的设计,使整个空间零而不散。餐厅内设进厅、中心水景区、就餐区、酒水服务区等,各功能分区既相互独立又相互关联,成为一个有机的整体,提高了工作效率的同时又便于各部门之间的协作。俗话说,民以食为天。当今,吃已不仅仅只是为了充饥,人们赋予了饮食更多的内涵和意义。品味美食,品味的不仅仅只是美食,更是一种时尚的饮食文化,一种健康的生活理念,一种对人生的态度。
感受经典,品味时尚!伴着悠扬的乐曲,再加上一杯纯正的新粤海棠香港奶茶,定会令您流连其中,久久不愿离去……
-
新粤海棠
走进这家餐厅,首先感受到的是它浓浓的设计“范儿”和食客如云的闹猛。在这里,古典与现代被全新演绎,尽管空间中糅合了多种元素,但给人的感觉是清新而悦目,精致而优雅。餐厅整体散发着现代、时尚气息,潺潺的流水,写意流畅的线条,极具创意的装修风格;各种新材料的使用,以及强烈的质感、肌理的对比,体现了现代生活快节奏、简约和实用,但又富有朝气的特点。在悠闲的午后,携三五好友,享受这专属自己的时光,远离现代都市的喧嚣和嘈杂,独享一份难得的恬适与静谧。在功能的划分上,设计师充分利用每一寸空间,通过巧妙的设计,使整个空间零而不散。餐厅内设进厅、中心水景区、就餐区、酒水服务区等,各功能分区既相互独立又相互关联,成为一个有机的整体,提高了工作效率的同时又便于各部门之间的协作。俗话说,民以食为天。当今,吃已不仅仅只是为了充饥,人们赋予了饮食更多的内涵和意义。品味美食,品味的不仅仅只是美食,更是一种时尚的饮食文化,一种健康的生活理念,一种对人生的态度。
感受经典,品味时尚!伴着悠扬的乐曲,再加上一杯纯正的新粤海棠香港奶茶,定会令您流连其中,久久不愿离去……
-
新粤海棠
走进这家餐厅,首先感受到的是它浓浓的设计“范儿”和食客如云的闹猛。在这里,古典与现代被全新演绎,尽管空间中糅合了多种元素,但给人的感觉是清新而悦目,精致而优雅。餐厅整体散发着现代、时尚气息,潺潺的流水,写意流畅的线条,极具创意的装修风格;各种新材料的使用,以及强烈的质感、肌理的对比,体现了现代生活快节奏、简约和实用,但又富有朝气的特点。在悠闲的午后,携三五好友,享受这专属自己的时光,远离现代都市的喧嚣和嘈杂,独享一份难得的恬适与静谧。在功能的划分上,设计师充分利用每一寸空间,通过巧妙的设计,使整个空间零而不散。餐厅内设进厅、中心水景区、就餐区、酒水服务区等,各功能分区既相互独立又相互关联,成为一个有机的整体,提高了工作效率的同时又便于各部门之间的协作。俗话说,民以食为天。当今,吃已不仅仅只是为了充饥,人们赋予了饮食更多的内涵和意义。品味美食,品味的不仅仅只是美食,更是一种时尚的饮食文化,一种健康的生活理念,一种对人生的态度。
感受经典,品味时尚!伴着悠扬的乐曲,再加上一杯纯正的新粤海棠香港奶茶,定会令您流连其中,久久不愿离去……
-
新粤海棠
走进这家餐厅,首先感受到的是它浓浓的设计“范儿”和食客如云的闹猛。在这里,古典与现代被全新演绎,尽管空间中糅合了多种元素,但给人的感觉是清新而悦目,精致而优雅。餐厅整体散发着现代、时尚气息,潺潺的流水,写意流畅的线条,极具创意的装修风格;各种新材料的使用,以及强烈的质感、肌理的对比,体现了现代生活快节奏、简约和实用,但又富有朝气的特点。在悠闲的午后,携三五好友,享受这专属自己的时光,远离现代都市的喧嚣和嘈杂,独享一份难得的恬适与静谧。在功能的划分上,设计师充分利用每一寸空间,通过巧妙的设计,使整个空间零而不散。餐厅内设进厅、中心水景区、就餐区、酒水服务区等,各功能分区既相互独立又相互关联,成为一个有机的整体,提高了工作效率的同时又便于各部门之间的协作。俗话说,民以食为天。当今,吃已不仅仅只是为了充饥,人们赋予了饮食更多的内涵和意义。品味美食,品味的不仅仅只是美食,更是一种时尚的饮食文化,一种健康的生活理念,一种对人生的态度。
感受经典,品味时尚!伴着悠扬的乐曲,再加上一杯纯正的新粤海棠香港奶茶,定会令您流连其中,久久不愿离去……
-
新粤海棠
走进这家餐厅,首先感受到的是它浓浓的设计“范儿”和食客如云的闹猛。在这里,古典与现代被全新演绎,尽管空间中糅合了多种元素,但给人的感觉是清新而悦目,精致而优雅。餐厅整体散发着现代、时尚气息,潺潺的流水,写意流畅的线条,极具创意的装修风格;各种新材料的使用,以及强烈的质感、肌理的对比,体现了现代生活快节奏、简约和实用,但又富有朝气的特点。在悠闲的午后,携三五好友,享受这专属自己的时光,远离现代都市的喧嚣和嘈杂,独享一份难得的恬适与静谧。在功能的划分上,设计师充分利用每一寸空间,通过巧妙的设计,使整个空间零而不散。餐厅内设进厅、中心水景区、就餐区、酒水服务区等,各功能分区既相互独立又相互关联,成为一个有机的整体,提高了工作效率的同时又便于各部门之间的协作。俗话说,民以食为天。当今,吃已不仅仅只是为了充饥,人们赋予了饮食更多的内涵和意义。品味美食,品味的不仅仅只是美食,更是一种时尚的饮食文化,一种健康的生活理念,一种对人生的态度。
感受经典,品味时尚!伴着悠扬的乐曲,再加上一杯纯正的新粤海棠香港奶茶,定会令您流连其中,久久不愿离去……
-
新粤海棠
走进这家餐厅,首先感受到的是它浓浓的设计“范儿”和食客如云的闹猛。在这里,古典与现代被全新演绎,尽管空间中糅合了多种元素,但给人的感觉是清新而悦目,精致而优雅。餐厅整体散发着现代、时尚气息,潺潺的流水,写意流畅的线条,极具创意的装修风格;各种新材料的使用,以及强烈的质感、肌理的对比,体现了现代生活快节奏、简约和实用,但又富有朝气的特点。在悠闲的午后,携三五好友,享受这专属自己的时光,远离现代都市的喧嚣和嘈杂,独享一份难得的恬适与静谧。在功能的划分上,设计师充分利用每一寸空间,通过巧妙的设计,使整个空间零而不散。餐厅内设进厅、中心水景区、就餐区、酒水服务区等,各功能分区既相互独立又相互关联,成为一个有机的整体,提高了工作效率的同时又便于各部门之间的协作。俗话说,民以食为天。当今,吃已不仅仅只是为了充饥,人们赋予了饮食更多的内涵和意义。品味美食,品味的不仅仅只是美食,更是一种时尚的饮食文化,一种健康的生活理念,一种对人生的态度。
感受经典,品味时尚!伴着悠扬的乐曲,再加上一杯纯正的新粤海棠香港奶茶,定会令您流连其中,久久不愿离去……
-
新粤海棠
走进这家餐厅,首先感受到的是它浓浓的设计“范儿”和食客如云的闹猛。在这里,古典与现代被全新演绎,尽管空间中糅合了多种元素,但给人的感觉是清新而悦目,精致而优雅。餐厅整体散发着现代、时尚气息,潺潺的流水,写意流畅的线条,极具创意的装修风格;各种新材料的使用,以及强烈的质感、肌理的对比,体现了现代生活快节奏、简约和实用,但又富有朝气的特点。在悠闲的午后,携三五好友,享受这专属自己的时光,远离现代都市的喧嚣和嘈杂,独享一份难得的恬适与静谧。在功能的划分上,设计师充分利用每一寸空间,通过巧妙的设计,使整个空间零而不散。餐厅内设进厅、中心水景区、就餐区、酒水服务区等,各功能分区既相互独立又相互关联,成为一个有机的整体,提高了工作效率的同时又便于各部门之间的协作。俗话说,民以食为天。当今,吃已不仅仅只是为了充饥,人们赋予了饮食更多的内涵和意义。品味美食,品味的不仅仅只是美食,更是一种时尚的饮食文化,一种健康的生活理念,一种对人生的态度。
感受经典,品味时尚!伴着悠扬的乐曲,再加上一杯纯正的新粤海棠香港奶茶,定会令您流连其中,久久不愿离去……
-
新粤海棠
走进这家餐厅,首先感受到的是它浓浓的设计“范儿”和食客如云的闹猛。在这里,古典与现代被全新演绎,尽管空间中糅合了多种元素,但给人的感觉是清新而悦目,精致而优雅。餐厅整体散发着现代、时尚气息,潺潺的流水,写意流畅的线条,极具创意的装修风格;各种新材料的使用,以及强烈的质感、肌理的对比,体现了现代生活快节奏、简约和实用,但又富有朝气的特点。在悠闲的午后,携三五好友,享受这专属自己的时光,远离现代都市的喧嚣和嘈杂,独享一份难得的恬适与静谧。在功能的划分上,设计师充分利用每一寸空间,通过巧妙的设计,使整个空间零而不散。餐厅内设进厅、中心水景区、就餐区、酒水服务区等,各功能分区既相互独立又相互关联,成为一个有机的整体,提高了工作效率的同时又便于各部门之间的协作。俗话说,民以食为天。当今,吃已不仅仅只是为了充饥,人们赋予了饮食更多的内涵和意义。品味美食,品味的不仅仅只是美食,更是一种时尚的饮食文化,一种健康的生活理念,一种对人生的态度。
感受经典,品味时尚!伴着悠扬的乐曲,再加上一杯纯正的新粤海棠香港奶茶,定会令您流连其中,久久不愿离去……
-
新粤海棠
走进这家餐厅,首先感受到的是它浓浓的设计“范儿”和食客如云的闹猛。在这里,古典与现代被全新演绎,尽管空间中糅合了多种元素,但给人的感觉是清新而悦目,精致而优雅。餐厅整体散发着现代、时尚气息,潺潺的流水,写意流畅的线条,极具创意的装修风格;各种新材料的使用,以及强烈的质感、肌理的对比,体现了现代生活快节奏、简约和实用,但又富有朝气的特点。在悠闲的午后,携三五好友,享受这专属自己的时光,远离现代都市的喧嚣和嘈杂,独享一份难得的恬适与静谧。在功能的划分上,设计师充分利用每一寸空间,通过巧妙的设计,使整个空间零而不散。餐厅内设进厅、中心水景区、就餐区、酒水服务区等,各功能分区既相互独立又相互关联,成为一个有机的整体,提高了工作效率的同时又便于各部门之间的协作。俗话说,民以食为天。当今,吃已不仅仅只是为了充饥,人们赋予了饮食更多的内涵和意义。品味美食,品味的不仅仅只是美食,更是一种时尚的饮食文化,一种健康的生活理念,一种对人生的态度。
感受经典,品味时尚!伴着悠扬的乐曲,再加上一杯纯正的新粤海棠香港奶茶,定会令您流连其中,久久不愿离去……
-
新粤海棠
走进这家餐厅,首先感受到的是它浓浓的设计“范儿”和食客如云的闹猛。在这里,古典与现代被全新演绎,尽管空间中糅合了多种元素,但给人的感觉是清新而悦目,精致而优雅。餐厅整体散发着现代、时尚气息,潺潺的流水,写意流畅的线条,极具创意的装修风格;各种新材料的使用,以及强烈的质感、肌理的对比,体现了现代生活快节奏、简约和实用,但又富有朝气的特点。在悠闲的午后,携三五好友,享受这专属自己的时光,远离现代都市的喧嚣和嘈杂,独享一份难得的恬适与静谧。在功能的划分上,设计师充分利用每一寸空间,通过巧妙的设计,使整个空间零而不散。餐厅内设进厅、中心水景区、就餐区、酒水服务区等,各功能分区既相互独立又相互关联,成为一个有机的整体,提高了工作效率的同时又便于各部门之间的协作。俗话说,民以食为天。当今,吃已不仅仅只是为了充饥,人们赋予了饮食更多的内涵和意义。品味美食,品味的不仅仅只是美食,更是一种时尚的饮食文化,一种健康的生活理念,一种对人生的态度。
感受经典,品味时尚!伴着悠扬的乐曲,再加上一杯纯正的新粤海棠香港奶茶,定会令您流连其中,久久不愿离去……
-
新粤海棠
走进这家餐厅,首先感受到的是它浓浓的设计“范儿”和食客如云的闹猛。在这里,古典与现代被全新演绎,尽管空间中糅合了多种元素,但给人的感觉是清新而悦目,精致而优雅。餐厅整体散发着现代、时尚气息,潺潺的流水,写意流畅的线条,极具创意的装修风格;各种新材料的使用,以及强烈的质感、肌理的对比,体现了现代生活快节奏、简约和实用,但又富有朝气的特点。在悠闲的午后,携三五好友,享受这专属自己的时光,远离现代都市的喧嚣和嘈杂,独享一份难得的恬适与静谧。在功能的划分上,设计师充分利用每一寸空间,通过巧妙的设计,使整个空间零而不散。餐厅内设进厅、中心水景区、就餐区、酒水服务区等,各功能分区既相互独立又相互关联,成为一个有机的整体,提高了工作效率的同时又便于各部门之间的协作。俗话说,民以食为天。当今,吃已不仅仅只是为了充饥,人们赋予了饮食更多的内涵和意义。品味美食,品味的不仅仅只是美食,更是一种时尚的饮食文化,一种健康的生活理念,一种对人生的态度。
感受经典,品味时尚!伴着悠扬的乐曲,再加上一杯纯正的新粤海棠香港奶茶,定会令您流连其中,久久不愿离去……
-
新粤海棠
走进这家餐厅,首先感受到的是它浓浓的设计“范儿”和食客如云的闹猛。在这里,古典与现代被全新演绎,尽管空间中糅合了多种元素,但给人的感觉是清新而悦目,精致而优雅。餐厅整体散发着现代、时尚气息,潺潺的流水,写意流畅的线条,极具创意的装修风格;各种新材料的使用,以及强烈的质感、肌理的对比,体现了现代生活快节奏、简约和实用,但又富有朝气的特点。在悠闲的午后,携三五好友,享受这专属自己的时光,远离现代都市的喧嚣和嘈杂,独享一份难得的恬适与静谧。在功能的划分上,设计师充分利用每一寸空间,通过巧妙的设计,使整个空间零而不散。餐厅内设进厅、中心水景区、就餐区、酒水服务区等,各功能分区既相互独立又相互关联,成为一个有机的整体,提高了工作效率的同时又便于各部门之间的协作。俗话说,民以食为天。当今,吃已不仅仅只是为了充饥,人们赋予了饮食更多的内涵和意义。品味美食,品味的不仅仅只是美食,更是一种时尚的饮食文化,一种健康的生活理念,一种对人生的态度。
感受经典,品味时尚!伴着悠扬的乐曲,再加上一杯纯正的新粤海棠香港奶茶,定会令您流连其中,久久不愿离去……
-
新粤海棠
走进这家餐厅,首先感受到的是它浓浓的设计“范儿”和食客如云的闹猛。在这里,古典与现代被全新演绎,尽管空间中糅合了多种元素,但给人的感觉是清新而悦目,精致而优雅。餐厅整体散发着现代、时尚气息,潺潺的流水,写意流畅的线条,极具创意的装修风格;各种新材料的使用,以及强烈的质感、肌理的对比,体现了现代生活快节奏、简约和实用,但又富有朝气的特点。在悠闲的午后,携三五好友,享受这专属自己的时光,远离现代都市的喧嚣和嘈杂,独享一份难得的恬适与静谧。在功能的划分上,设计师充分利用每一寸空间,通过巧妙的设计,使整个空间零而不散。餐厅内设进厅、中心水景区、就餐区、酒水服务区等,各功能分区既相互独立又相互关联,成为一个有机的整体,提高了工作效率的同时又便于各部门之间的协作。俗话说,民以食为天。当今,吃已不仅仅只是为了充饥,人们赋予了饮食更多的内涵和意义。品味美食,品味的不仅仅只是美食,更是一种时尚的饮食文化,一种健康的生活理念,一种对人生的态度。
感受经典,品味时尚!伴着悠扬的乐曲,再加上一杯纯正的新粤海棠香港奶茶,定会令您流连其中,久久不愿离去……