-
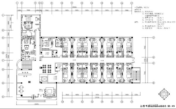
昌吉索马里海盗主题酒店
本设计酒店原为老厂房改造,酒店定位三星级标准,客房总数80间,客房的基本功能是:卧室、办公、通讯、休闲、娱乐、洗浴、化妆、卫生间(座便间)、行李存放、衣物存放、会客、私晤、早餐、闲饮、安全等,设计师合理的利用了虚实分割手法,利用镜面反射空间,利用色彩变化,或者采用一些趣味设计,使小客房产生大效果....
-
昌吉索马里海盗主题酒店
本设计酒店原为老厂房改造,酒店定位三星级标准,客房总数80间,客房的基本功能是:卧室、办公、通讯、休闲、娱乐、洗浴、化妆、卫生间(座便间)、行李存放、衣物存放、会客、私晤、早餐、闲饮、安全等,设计师合理的利用了虚实分割手法,利用镜面反射空间,利用色彩变化,或者采用一些趣味设计,使小客房产生大效果....
-
昌吉索马里海盗主题酒店
本设计酒店原为老厂房改造,酒店定位三星级标准,客房总数80间,客房的基本功能是:卧室、办公、通讯、休闲、娱乐、洗浴、化妆、卫生间(座便间)、行李存放、衣物存放、会客、私晤、早餐、闲饮、安全等,设计师合理的利用了虚实分割手法,利用镜面反射空间,利用色彩变化,或者采用一些趣味设计,使小客房产生大效果....
-
昌吉索马里海盗主题酒店
本设计酒店原为老厂房改造,酒店定位三星级标准,客房总数80间,客房的基本功能是:卧室、办公、通讯、休闲、娱乐、洗浴、化妆、卫生间(座便间)、行李存放、衣物存放、会客、私晤、早餐、闲饮、安全等,设计师合理的利用了虚实分割手法,利用镜面反射空间,利用色彩变化,或者采用一些趣味设计,使小客房产生大效果....
-
昌吉索马里海盗主题酒店
本设计酒店原为老厂房改造,酒店定位三星级标准,客房总数80间,客房的基本功能是:卧室、办公、通讯、休闲、娱乐、洗浴、化妆、卫生间(座便间)、行李存放、衣物存放、会客、私晤、早餐、闲饮、安全等,设计师合理的利用了虚实分割手法,利用镜面反射空间,利用色彩变化,或者采用一些趣味设计,使小客房产生大效果....
-
昌吉索马里海盗主题酒店
本设计酒店原为老厂房改造,酒店定位三星级标准,客房总数80间,客房的基本功能是:卧室、办公、通讯、休闲、娱乐、洗浴、化妆、卫生间(座便间)、行李存放、衣物存放、会客、私晤、早餐、闲饮、安全等,设计师合理的利用了虚实分割手法,利用镜面反射空间,利用色彩变化,或者采用一些趣味设计,使小客房产生大效果....
-
昌吉索马里海盗主题酒店
本设计酒店原为老厂房改造,酒店定位三星级标准,客房总数80间,客房的基本功能是:卧室、办公、通讯、休闲、娱乐、洗浴、化妆、卫生间(座便间)、行李存放、衣物存放、会客、私晤、早餐、闲饮、安全等,设计师合理的利用了虚实分割手法,利用镜面反射空间,利用色彩变化,或者采用一些趣味设计,使小客房产生大效果....
-
昌吉索马里海盗主题酒店
本设计酒店原为老厂房改造,酒店定位三星级标准,客房总数80间,客房的基本功能是:卧室、办公、通讯、休闲、娱乐、洗浴、化妆、卫生间(座便间)、行李存放、衣物存放、会客、私晤、早餐、闲饮、安全等,设计师合理的利用了虚实分割手法,利用镜面反射空间,利用色彩变化,或者采用一些趣味设计,使小客房产生大效果....
-
昌吉索马里海盗主题酒店
本设计酒店原为老厂房改造,酒店定位三星级标准,客房总数80间,客房的基本功能是:卧室、办公、通讯、休闲、娱乐、洗浴、化妆、卫生间(座便间)、行李存放、衣物存放、会客、私晤、早餐、闲饮、安全等,设计师合理的利用了虚实分割手法,利用镜面反射空间,利用色彩变化,或者采用一些趣味设计,使小客房产生大效果....